 
					  Escolha abaixo a cidade onde deseja buscar seu imóvel.
Selecione uma Operação
- 													
												Alianzzo Imobiliária (16) 4009-8606 (16) 99444-2049Alianzzo Imóveis (16) 4009-8606 (16) 99167-5179
- 
										QUEM SOMOS
- 
										Cadastre seu Imóvel
- 
										2° VIA BOLETO
- 
										TRABALHE COM A ALIANZZO
- 
										FALE CONOSCO
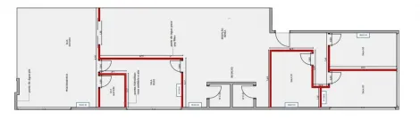
Sala Comercial para Locação ? Jardim Irajá, Ribeirão Preto/SP
Comercial padrão Ponto Comercial - Jardim Irajá Comercial para Locação em Ribeirão Preto
Apresentamos esta oportunidade oferecida pela Alianzzo Imóveis - onde negócios e conquistas se encontram. Este imóvel comercial foi cuidadosamente selecionado para atender empresas que valorizam localização estratégica, sofisticação e funcionalidade.
 Área construída: 302 m²
 Área de terreno: 300 m²
 Fachada em vidro - visual moderno e imponente
Mezanino funcional - ideal para escritórios ou salas de reunião
 04 banheiros
02 copas
03 vagas de garagem privativas.
Localizado em uma das regiões mais tradicionais da zona sul de Ribeirão Preto, o Jardim Irajá reúne excelente infraestrutura urbana, com fácil acesso a vias importantes e proximidade a comércios, bancos, clínicas e restaurantes.
Este espaço é ideal para empresas que desejam aliar visibilidade, conforto e estrutura em um único endereço.
Entre em contato com a Alianzzo Imóveis e agende uma visita.
Sua nova sede está a um passo de se tornar realidade.
DISPONÍVEL
Imóvel disponível. Contate-nos pessoalmente para visita-lo
Comercial padrão - Galpão - Armazém
Apresentamos esta oportunidade oferecida pela Alianzzo Imóveis - onde lares e histórias se encontram. Este imóvel foi cuidadosamente selecionado para atender quem busca conforto, praticidade e qualidade de vida. Com uma planta inteligente e ambientes bem distribuídos, ele oferece o espaço ideal para viver momentos únicos ao lado de quem você ama. Destaques do imóvel: - Galpão Amplo - 02 Escritórios com 140m² de área útil - 02 Copas - Refeitório - 05 Banheiros - Portão Articulado com 5metros para entrada de carretas Dimensões: - 550m² de área útil Localizado no bairro Vila Mariana, com fácil acesso a comércios, escolas e transporte público, este imóvel reúne tudo o que você precisa em um só lugar. Entre em contato com a Alianzzo Imóveis e venha conhecer seu novo lar. Aqui, cada imóvel é um convite para escrever uma nova história
Comercial padrão - Ponto Comercial
Apresentamos esta oportunidade oferecida pela Alianzzo Imóveis - onde lares e histórias se encontram. Este imóvel foi cuidadosamente selecionado para atender quem busca conforto, praticidade e qualidade de vida. Com uma planta inteligente e ambientes bem distribuídos, ele oferece o espaço ideal para viver momentos únicos ao lado de quem você ama. Destaques do imóvel: - Prédio comercial - 08 Salas - 04 Banheiros - 03 Vagas de garagem - Ideal para clínica odontológica Dimensões: 242m² de área construída Localizado no bairro Vila Seixas, com fácil acesso a comércios, escolas e transporte público, este imóvel reúne tudo o que você precisa em um só lugar.
Comercial padrão - Casa Comercial
Apresentamos esta oportunidade oferecida pela Alianzzo Imóveis - onde lares e histórias se encontram. Este imóvel foi cuidadosamente selecionado para atender quem busca conforto, praticidade e qualidade de vida. Com uma planta inteligente e ambientes bem distribuídos, ele oferece o espaço ideal para viver momentos únicos ao lado de quem você ama. Destaques do imóvel: - 15 salas (sendo 10 salas coletivas e 5 individuais) - Sala de recepção - Salas de arquivos - 02 banheiros adaptados (masculino e feminino), 01 banheiro de uso privativo - Saída de emergência, jardins e muita luz natural - Adaptação para todas as regras vigilância sanitária - Fácil estacionamento em via pública e vaga PCD na porta - Vídeo porteiro - Sistema completo de segurança (16 câmeras, alarme, muro alto e concertina) - 02 aparelhos de ar condicionado e 17 ventiladores - 01 quarto separado, 01 banheiro, cozinha/serviço (pode ser usado como uma kitnet) - Área residencial com piscina - 02 vagas de garagem - Portão eletrônico - Ar condicionado Dimensões: 552,50m² de área total Localizado no bairro Jardim Santa Ângela, com fácil acesso a comércios, escolas e transporte público, este imóvel reúne tudo o que você precisa em um só lugar.
Comercial padrão - Salão Comercial
Salão Comercial disponível para locação no bairro Jardim Paulista, Ribeirão Preto-SP Características: - 07 banheiro(s) -Galpão Amplo -Salas Dimensões: - 198,00m² de terreno - 434,00m² de área útil Valor de locação R$ 10.500,00 Valor do IPTU R$ 418,00 Se você busca um imóvel comercial em um dos bairros mais desejados da cidade, esta é a oportunidade ideal. Entre em contato e agende uma visita! Alianzzo Imóveis - aqui, cada imóvel é um convite para escrever uma nova história!
Comercial padrão - Ponto Comercial
Ponto Comercial - Locação - Jardim Cybelli - Ribeirão Preto/SP Localizado no bairro Jardim Cybelli, este imóvel oferece praticidade, conforto e excelente custo-benefício para quem busca um espaço funcional em uma região tradicional e bem estruturada da cidade. Apresentamos esta oportunidade oferecida pela Alianzzo Imóveis - onde lares e histórias se encontram. Mais do que um imóvel, cada espaço é um convite para escrever uma nova história. - O imóvel conta com: 3 banheiros, sendo 1 adaptado para PCD Mezanino 3 vagas rotativas Ambientes amplos e bem iluminados Pontos de ar-condicionado - Terreno: 355m² - Área construída: 292,85m² - Valor de locação: R$ 10.000,00 Com aprovação rápida, análise criteriosa e as melhores garantias do mercado, a Alianzzo Imóveis garante agilidade, segurança e tranquilidade em todo o processo. Que tal agendar uma visita hoje mesmo para conhecer este imóvel? Seja para vender, alugar ou comprar, conte com a Alianzzo, especialista em imóveis em Ribeirão Preto. Nosso compromisso é encontrar o imóvel que você deseja. Valores de locação, condomínio e IPTU sujeitos a alterações sem aviso prévio. Alianzzo Imóveis - mais do que administrar imóveis, administramos sonhos, conquistas e histórias. Aqui, cada imóvel é um convite para escrever uma nova história.
Comercial padrão - Salão Comercial
Sala Comercial disponível para locação em Ribeirão Preto-SP. Apresentamos esta oportunidade oferecida pela Alianzzo Imóveis - onde lares e histórias se encontram. Sala ampla, muito bem localizada e pronta para uso imediato. Ideal para escritórios, clínicas ou empresas que buscam estrutura, conforto e praticidade. Características do imóvel: Sala ampla pronta para uso Estrutura ideal para escritórios e clínicas Áreas comuns: Copa de apoio (subsolo) Dois banheiros acessíveis (térreo e subsolo) Átrio de convívio Elevador de acesso Vagas rotativas para clientes (térreo) Segurança: Monitoramento 24h Sistema de alarme e câmeras Alianzzo Imóveis - aqui, cada imóvel é um convite para escrever uma nova história.
 Inglês
										Inglês
									 Espanhol
										Espanhol
									 Portugues Br
										 Portugues Br
									 Francês
										Francês
									 Italiano
										Italiano
									 
				 
				 
				 
				 
				 
				 
				 
				 
				 
				 
									 
									 
									 
									 
									 
									 
									 
									 
									 
									 
									 
									 
									 
									 
									 
									 
									 
									 
									 
									 
									 
									 
									 
									 
									 
									 
									 
									